- 物件番号 a65-38.00-2
第6旭観光ビル
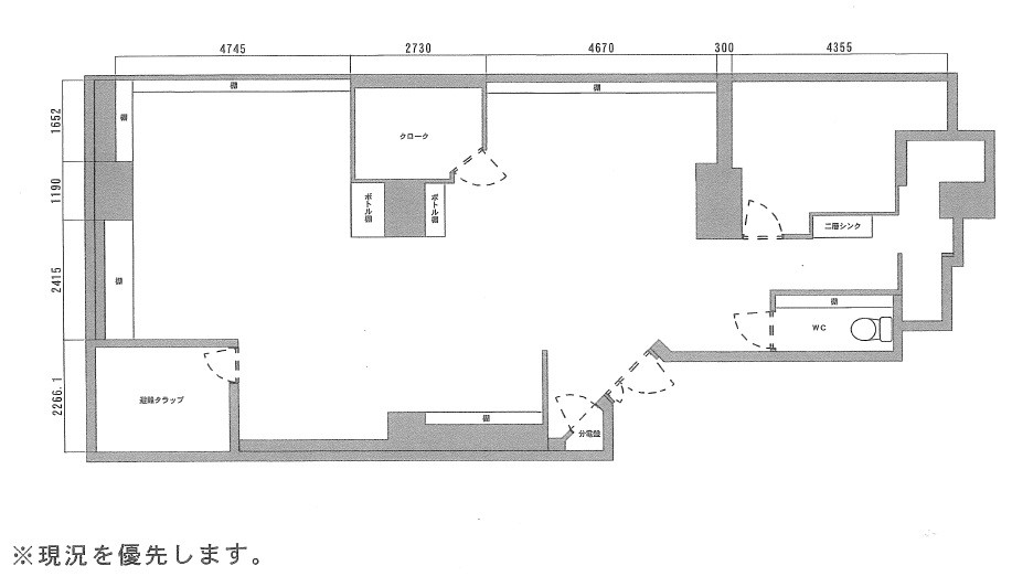
アミューズメントバーにおすすめ!
アミューズメントバー居抜き物件です! テナント・店舗探し、お問い合わせはサングッドまで!
- 所在地
- 札幌市中央区南6条西6丁目
- 賃料
- 334,400円
- 共益費・管理費
- 83,600円
- 坪単価
- 8,800円/坪
- 契約面積【坪】
- 125.4㎡【38.00坪】
- 種別
- バー・スナック, メンズパブ・ホストクラブ
- 階数
- 5階
- 引渡時期
- 相談
- 敷金・保証金
- 912,000円
- 礼金・権利金
- なし
- 仲介手数料概算
- 334,400円
- 最寄り駅/アクセス
- 地下鉄南北線すすきの駅 徒歩5分
- 設備
- 現地確認
- その他費用
- 冷暖房費83,600円 EV費12,540円 殺虫保守費1,650円 看板掲載料14,300円
- 備考
- フリーレント相談可 電気基本料29,336円+使用料+消費税 上下水道料8,000円+使用料+消費税 看板作成は自己負担
内覧希望・詳細が知りたい方こちら!
お問い合せの際は【物件番号 a65-38.00-2】をお伝え頂くとスムーズにご案内出来ます。
011-530-3910
受付時間 / 10:30~19:30
物件番号 a65-38.00-2第6旭観光ビル
アミューズメントバーにおすすめ!
アミューズメントバー居抜き物件です! テナント・店舗探し、お問い合わせはサングッドまで!
| 所在地 | 賃料 | 共益費・管理費 | 坪単価 | 契約面積【坪】 |
|---|---|---|---|---|
| 札幌市中央区南6条西6丁目 | 334,400円 | 83,600円 | 8,800円/坪 | 125.4㎡【38.00坪】 |


| 種別 | バー・スナック, メンズパブ・ホストクラブ | 仲介手数料概算 | 334,400円 |
|---|---|---|---|
| 階数 | 5階 | 最寄り駅/アクセス | 地下鉄南北線すすきの駅 徒歩5分 |
| 引渡時期 | 相談 | 設備 | 現地確認 |
| 敷金・保証金 | 912,000円 | その他費用 | 冷暖房費83,600円 EV費12,540円 殺虫保守費1,650円 看板掲載料14,300円 |
| 礼金・権利金 | なし | 備考 | フリーレント相談可 電気基本料29,336円+使用料+消費税 上下水道料8,000円+使用料+消費税 看板作成は自己負担 |
周辺地図
ストリートビュー
おすすめ物件
バー・スナック, メンズパブ・ホストクラブ
物件番号 tc5-10.00-Cシャンゼリゼ・ビル
- 業種
- バー・スナック
- 住所
- 札幌市中央区南4条西5丁目
- 面積
- 33.06㎡[10.00坪]
- 賃料
- 143,000円
物件番号 ng2-17.00-8N・グランデビル
- 業種
- バー・スナック
- 住所
- 札幌市中央区南5条西3丁目
- 面積
- 56.2㎡[17.00坪]
- 賃料
- 280,500円
物件番号 k54-10.60-1第5桂和ビル
- 業種
- 飲食店, バー・スナック
- 住所
- 札幌市中央区南5条西6丁目
- 面積
- 34.98㎡[10.60坪]
- 賃料
- 128,700円
物件番号 k21k8-17.25-2第21桂和ビル
- 業種
- バー・スナック, ニュークラブ・ラウンジ・パブ
- 住所
- 札幌市中央区南6条西4丁目
- 面積
- 56.92㎡[17.25坪]
- 賃料
- 227,700円
物件番号 h3g7-11.60-26第3グリーンビル
- 業種
- バー・スナック
- 住所
- 札幌市中央区南4条西3丁目
- 面積
- 38.28㎡[11.60坪]
- 賃料
- 165,880円
物件番号 h3g6-9.40-15第3グリーンビル
- 業種
- バー・スナック
- 住所
- 札幌市中央区南4条西3丁目
- 面積
- 31.02㎡[9.40坪]
- 賃料
- 134,420円
物件番号 hh4-7.77-401第2北海ビルアバンティ
- 業種
- バー・スナック
- 住所
- 札幌市中央区南7条西4丁目
- 面積
- 25.68㎡[7.77坪]
- 賃料
- 132,000円
物件番号 h3g4-11.90-T第3グリーンビル
- 業種
- バー・スナック, ニュークラブ・ラウンジ・パブ
- 住所
- 札幌市中央区南4条西3丁目
- 面積
- 39.27㎡[11.90坪]
- 賃料
- 170,170円
物件に関するお問い合わせは【物件番号 a65-38.00-2】をお伝え頂けますとスムーズにご案内出来ます。
